4evazx

Need urgent help for my living room layout

8 years ago
last modified: 8 years ago

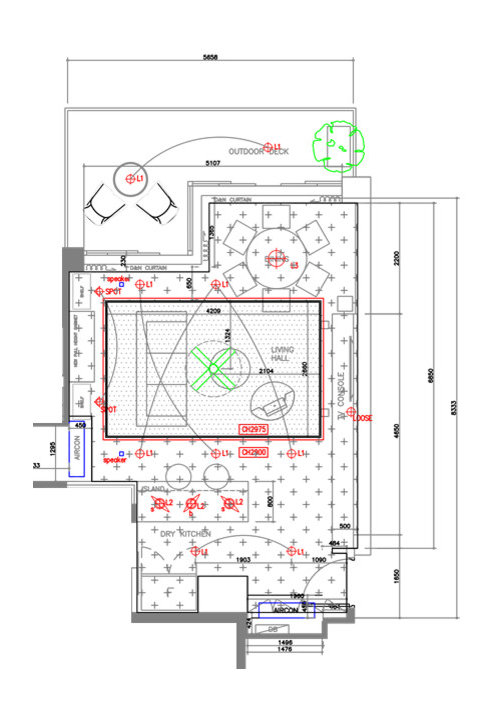
Hi! Here's my situation: My renovation is starting in a day's time, but out of the sudden I feel very insecure about the layout/design the longer I stare at it. Here is my lighting/layout/false ceiling plan :

Hope to get some suggestions or reassurance by you guys : Concern 1 - The living room only have 5 12W downlights. Not sure if its bright enough or if its oddly numbered. I can seem to fit another one in as well. Concern 2 - The cove light seems to be cutting into the dining area. I'm not someone who can visualize well so I'm not sure if it will be alright. Concern 3 - Cove light/false ceiling is extending out to the rooms corridor, so my ceiling speaker and down lights are straightly aligned with the corridor. Would really appreciate some last minute input :)

Comments (2)

Singapore
Tailor my experience with cookies

Houzz uses cookies and similar technologies to personalise my experience, serve me relevant content, and improve Houzz products and services. By clicking ‘Accept’ I agree to this, as further described in the Houzz Cookie Policy. I can reject non-essential cookies by clicking ‘Manage Preferences’.