Houzz Tours
Houzz Tour: Squaring Off an Oddly-Shaped Flat
This compact home doubles its size visually through a masterful planning of mirrors and openings
Faced with an oddly-shaped flat, the bachelor owner of this resale 3-room HDB flat sought the help of designer Quck Zhong Yi of asolidplan and SOLID architects to make sense of the the cramped and complicated layout. “The owner wants the space to feel big. He was also clear in what he wanted for the materials. He wanted timber, lots of it,” says Quck.
Doing away with a theme to establish the look of the space, Quck instead focused on strengthening the spatial planning, and layering neutral tones for a light-against-dark concept. He also relied on a tried-and-tested design technique for visually expanding small spaces – mirrors.
Doing away with a theme to establish the look of the space, Quck instead focused on strengthening the spatial planning, and layering neutral tones for a light-against-dark concept. He also relied on a tried-and-tested design technique for visually expanding small spaces – mirrors.
When working with a difficult layout, the designer says, “It is important to look at the big picture, e.g. the external site context, and not be myopic and focused on the problematic parts of the existing layout.”
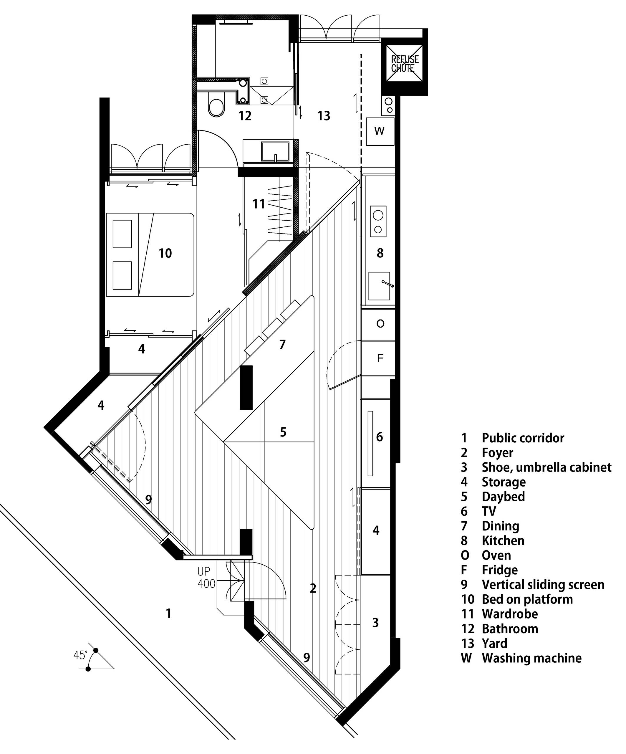
In this case, the apartment had a 45-degree wall, angled in such a way that the living space became triangular. “We turned the restrictive 45-degree wall into a concept driver, by first ‘squaring’ the 45-degree space, then reflecting the new triangle with a mirror,” says Quck. With the mirrored wall in place, there is an illusion of double the space, and light also bounces around to make the space appear airier.
In this case, the apartment had a 45-degree wall, angled in such a way that the living space became triangular. “We turned the restrictive 45-degree wall into a concept driver, by first ‘squaring’ the 45-degree space, then reflecting the new triangle with a mirror,” says Quck. With the mirrored wall in place, there is an illusion of double the space, and light also bounces around to make the space appear airier.
Behind the new mirrored wall are pockets of spaces that conceal the storage, TV, and the kitchen.
Creating these sliding mirrors was a challenge that the team faced. “They were made with different mechanisms, and all had to align flush on the outside when closed for perfect reflection. The contractors had to redo a few of the mirror pieces,” he says.
Creating these sliding mirrors was a challenge that the team faced. “They were made with different mechanisms, and all had to align flush on the outside when closed for perfect reflection. The contractors had to redo a few of the mirror pieces,” he says.
“To reinforce the new axes of the layout, a cantilevered dining table and a pair of triangular daybeds form an island in the centre of the space, with the edges parallel to the walls,” says Quck.
The two-piece daybed also fulfils the need to have versatility in a compact space, as it doubles as extra seating for the dining area. “It is highly configurable to adapt to the odd-shaped space, including options like tucking against the 45-degree corners, or combining to form a king-sized bed,” he says.
The two-piece daybed also fulfils the need to have versatility in a compact space, as it doubles as extra seating for the dining area. “It is highly configurable to adapt to the odd-shaped space, including options like tucking against the 45-degree corners, or combining to form a king-sized bed,” he says.
The team also devised a pair of vertical sliding window screens to give the owner control over the balance of privacy, views and ventilation. “The custom sliding screens work by having concealed counter weights. When opened, the sliding screen serves as a ledge, overlooking the common corridor and towards the lush greenery outside,” says Quck.
The use of horizontal oak strip cladding reinforced the continuity of the two diagonal walls. Attention was paid to the alignment of the strips across the door breaks and corners.
The designer also opted to leave the slab soffit (ceiling) bare. “We deliberately planned all the lighting to be from the sides, from the carpentry, hence no false ceiling was needed,” he says.
The designer also opted to leave the slab soffit (ceiling) bare. “We deliberately planned all the lighting to be from the sides, from the carpentry, hence no false ceiling was needed,” he says.
One enters the private domain through a sliding door. The bedroom is a cosy oak box with indirect lighting all around, which gives it a warm glow and enhances the restful ambience.
To maintain a clean, cohesive look, power points are hidden below the raised floor beside the bed.
Carpentry work and furniture: E&B Furniture; oak strip cladding and engineered wood flooring: Arc Floor
To maintain a clean, cohesive look, power points are hidden below the raised floor beside the bed.
Carpentry work and furniture: E&B Furniture; oak strip cladding and engineered wood flooring: Arc Floor
The oak-strip-clad box has sliding screens on both sides, concealing the wardrobe on one side and the window on the other. This gives the owner complete leeway to establish the light and mood in his room.
Decked in pale textured tiles, the bathroom is a light-filled, minimalist sanctuary on its own.
TELL US
What did you find most striking about this home? Share in the Comments below.
What did you find most striking about this home? Share in the Comments below.














Houzz at a Glance
Who lives here: A bachelor
Location: Bukit Purmei
Size: 75 square metres (807 square feet)
Project duration: 3 months