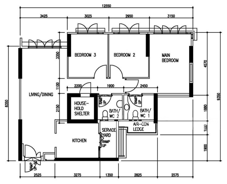
4-Room BTO Flat: 1 Floor Plan, 3 Different Looks
Think you're limited by your flat's cookie-cutter layout? These three homes – and their designers – show otherwise
Despite having a similar layout for the kitchen and living/dining areas, each of these three HDB BTO (Build-to-Order) flats shines with its own personality. Designed and customised to suit the lifestyle of its owners and occupants, each home is unique and different.
1. Raw and weathered
This BTO flat exudes rustic appeal with hints of the industrial look and an open-concept kitchen. The half-wall and the dining area wall were finished in Easy Plaster screed to achieve a bare-bones look.
Who lives here: A thirtysomething married couple
Location: Punggol
Size: Approximately 110 square metres (3 bedrooms, 2 bathrooms)
This BTO flat exudes rustic appeal with hints of the industrial look and an open-concept kitchen. The half-wall and the dining area wall were finished in Easy Plaster screed to achieve a bare-bones look.
Who lives here: A thirtysomething married couple
Location: Punggol
Size: Approximately 110 square metres (3 bedrooms, 2 bathrooms)
Plank-like tiles were used for the kitchen flooring while laminates with a dark woodgrain clad the kitchen cabinets. The Moroccan-style tile backsplash adds a splash of colour and vibrancy to the cooking space.
Read more stories about HDB homes
Read more stories about HDB homes
The weathered wood look is accentuated in the living room with a rustic wood-print wallpaper. Vievva Designers selected furniture pieces from Prestige Affairs to complement the built-in TV console and storage units.
The spare bedroom was converted into a study. In order to connect it to the living area without opening up the room completely, the designers replaced the walls with framed glass panels. The black powder-coated aluminium framework gives it a touch of the industrial style.
The study was designed to provide more storage and also a display area for the homeowners’ collection of toys and decorative art pieces.
Read more about this HDB flat’s renovation
Read more about this HDB flat’s renovation
2. Clean and modern
Chief creative producer Pan Yi Cheng from Produce gave the space a complete overhaul to meet the homeowners’ storage and frequent entertaining needs. The dining area and kitchen are now connected by a serving counter, prompting free-flow interaction.
Who lives here: A married couple, their mother and their two teenage children
Location: Sengkang
Size: Approximately 92 square metres (3 bedrooms, 2 bathrooms)
Chief creative producer Pan Yi Cheng from Produce gave the space a complete overhaul to meet the homeowners’ storage and frequent entertaining needs. The dining area and kitchen are now connected by a serving counter, prompting free-flow interaction.
Who lives here: A married couple, their mother and their two teenage children
Location: Sengkang
Size: Approximately 92 square metres (3 bedrooms, 2 bathrooms)
The flow of light and air in the kitchen improved greatly after the wall between the kitchen and dining rooms was taken down and converted into a serving station. There is also additional countertop space for quick meal preparation.
Pan knew that he needed to design a storage-friendly space to cater to this multi-generational family of five. Together with creative associate Chantal Tan, he gave them a generous flow of custom-built cabinetry in the living area and along the hallway.
All of the rooms’ doorways were relocated. In the first common bedroom, shared by the two teenagers, the entrance was shifted from the corridor to the living area. The room is designed to accommodate loft beds, study desks and a TV console.
Read more about this HDB flat’s renovation
Read more about this HDB flat’s renovation
3. Plush and cosy
As with the first two homes, the layout of this BTO flat was also re-configured to have an open-concept kitchen that flows with the dining and living areas. Designer Elden Lim, director of Minimology by Minimo, took inspiration from a treehouse, and infused this flat with earthy tones, plush textures and cosy nooks.
Who lives here: A couple in their mid-30s
Location: Punggol
Size: Approximately 120 square metres (3 bedrooms, 2 bathrooms)
As with the first two homes, the layout of this BTO flat was also re-configured to have an open-concept kitchen that flows with the dining and living areas. Designer Elden Lim, director of Minimology by Minimo, took inspiration from a treehouse, and infused this flat with earthy tones, plush textures and cosy nooks.
Who lives here: A couple in their mid-30s
Location: Punggol
Size: Approximately 120 square metres (3 bedrooms, 2 bathrooms)
Being consistent with the plush sanctuary that he has created in the living space, Lim even converted the utility yard into a balcony, complete with seating and plants. Since the homeowners wanted a breakfast counter, part of the kitchen counter was designed as a table.
The ‘treehouse’ inspiration is most played up in the living area with timber strips on the TV wall, plants, and loads of natural textures.
This home has kept the spare room as a separate distinct space. The intention was to create a movie room where the homeowners can relax in. A projector screen allows for flexibility in the use of this room while Chanel’s Little Black Jacket posters add a touch of glamour to the space.
Read more about this HDB flat’s renovation
TELL US
Got a 4-room BTO flat? What look did you go for? Share a photo in the Comments section.
MORE
How to apply for a BTO flat
Find a renovation professional in Singapore
Read more about this HDB flat’s renovation
TELL US
Got a 4-room BTO flat? What look did you go for? Share a photo in the Comments section.
MORE
How to apply for a BTO flat
Find a renovation professional in Singapore






















Here are three homes with a similar layout for its kitchen and living/dining areas, but with totally different styles.
Find a renovation professional in Singapore on Houzz, see images of their work, and read client reviews